الرئيسية
Smart-Kit Qatar
معلومات عنا
الهندسية SN
SN للتجارة
أخبار
اتصل بنا
Search Results
More
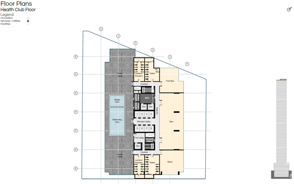
6B + G + 7P + 88 + R مبنى متعدد الاستخدامات في الخليج التجاري.
يتمتع المشروع بواحد من المواقع الرئيسية لذلك تم تصميمه كواحد من المشاريع الشهيرة في دبي مع شقق فاخرة مخدومة وإطلالة خلابة على قناة دبي المائية وأفق دبي.